
Gerealiseerd project
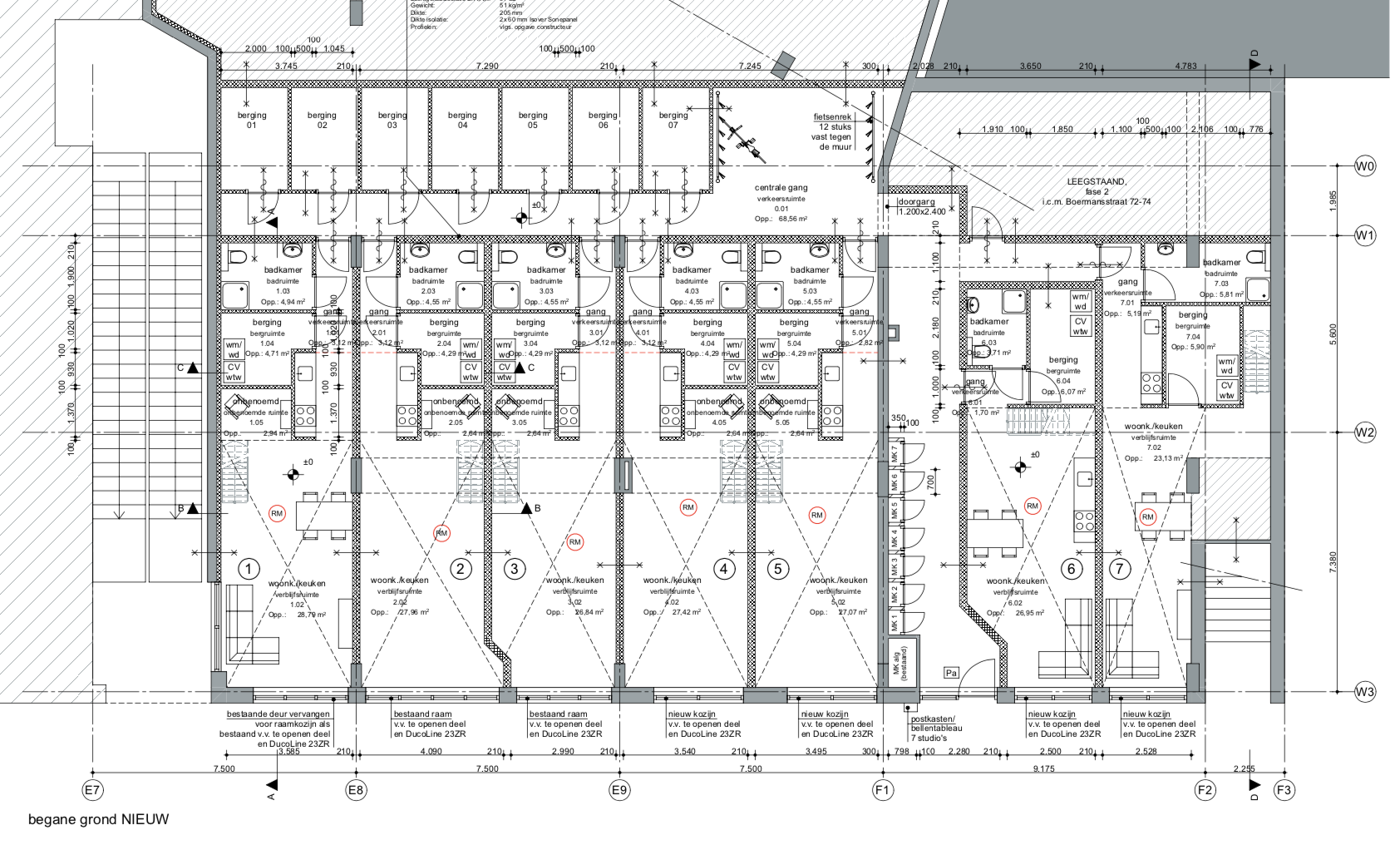
Medio 2023 zijn aan het Stationplein in Weert zeven appartementen opgeleverd. Deze appartementen beschikken over een woonkamer met open keuken, een badkamer met toilet, een technische ruimte en een slaapkamer op de verdieping, uitgevoerd als entresol. Daarnaast is er een gezamenlijke fietsenstalling en beschikt ieder appartement over een aparte berging in de gang. Er is tevens ruimte gecreëerd om een achtste appartement toe te voegen. Dit appartement is medio 2025 opgeleverd.







